2 Deakin Street, Yarraville
House
Relaxed Family Living, Dream Lifestyle Location
Superbly positioned location footsteps from local cafes and within strolling distance of parks, schools and Yarraville Village, this beautifully renovated period gem will delight buyers seeking a relaxed urban lifestyle and easy city access.
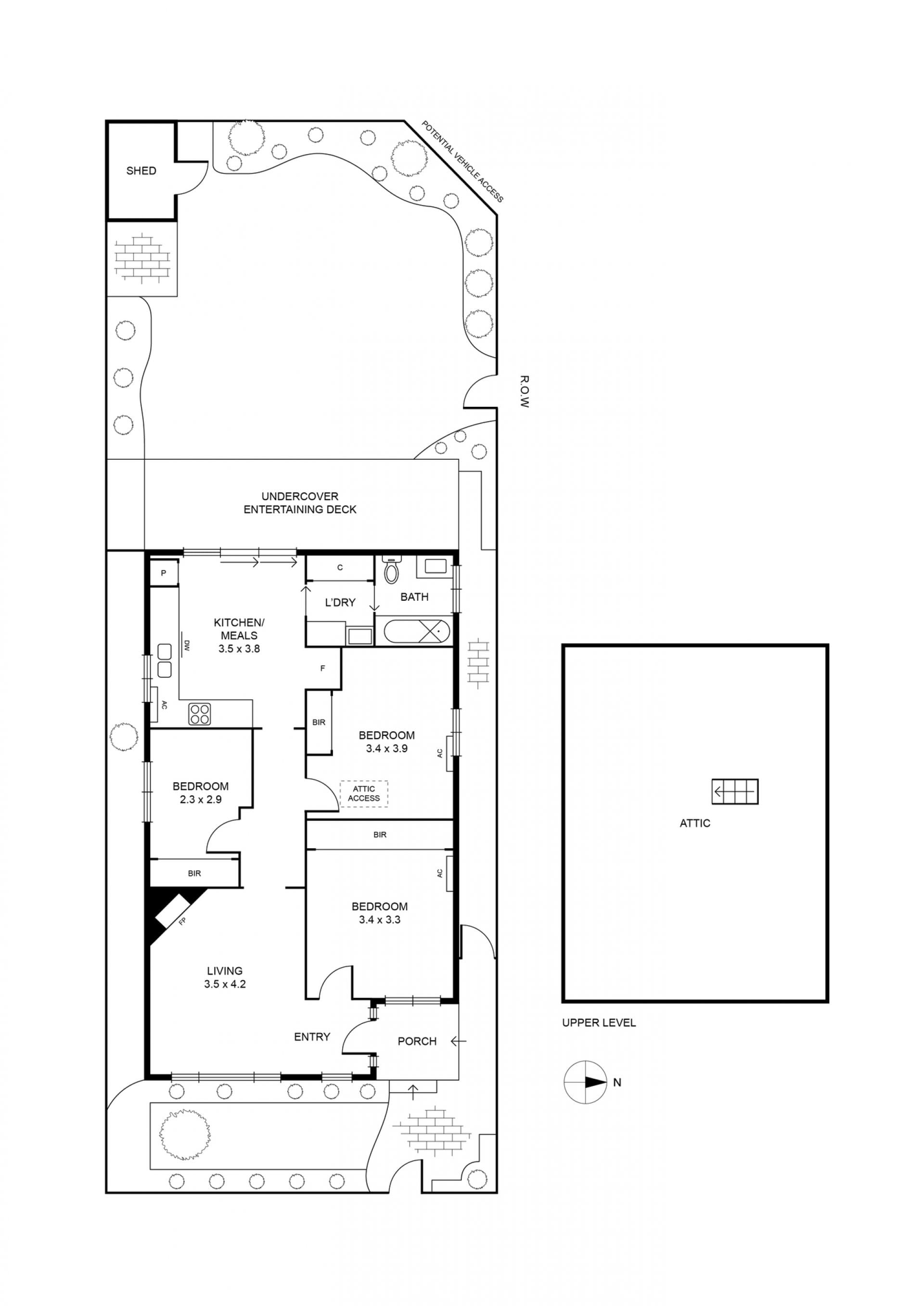
Three bedrooms are joined by sunny living areas while outside a covered entertaining deck overlooks an exquisite family backyard.
Property Features:
- Three bedrooms with built-in robes
- Sunny kitchen with elegant cabinetry, stone benchtops, stainless steel European appliances and plenty of room for a family dining table
- Large living room with feature fireplace
- Renovated bathroom with floor-to-ceiling subway tiling and shower over bath
- Walk-in laundry
- Comfort assured by split-system heating and cooling
- Huge attic storage space
- Original wall paneling and floorboards lend heritage character to updated interiors
- Sliding doors open from the kitchen to a covered entertaining deck overlooking the spacious, fairy-lit backyard with manicured lawn, established garden beds and gated side laneway access
- Potential for off-street parking
Enviably located in a highly coveted pocket of Yarraville. Somerville Road’s cafes and eateries await just footsteps from your front door or walk to Yarraville Village in less than 15 minutes* to enjoy its fabulous selection of cafes and eateries, boutiques and gourmet grocers.
Catch a movie at the iconic Sun Theatre or plan a date night at one of the cosy village wine bars.
The short walk to Yarraville Square promises easy access to Coles while proximity to Seddon Village adds extra lifestyle appeal.
Walk to Cruickshank Park in just 9 minutes* for a scenic stroll along the Stony Creek Trail as it winds through stunning parkland dotted with playgrounds and outdoor fitness amenities.
Only 8.6km* from the CBD with easy road access or walk to Yarraville Station for regular city-bound trains.
Sought-after school zone – Yarraville West Primary School (9-minute* walk), Footscray High School’s Pilgrim campus (easy bus ride) and St. Augustine’s Primary School (12-minute* walk).
*Approximate
Three bedrooms are joined by sunny living areas while outside a covered entertaining deck overlooks an exquisite family backyard.
Property Features:
- Three bedrooms with built-in robes
- Sunny kitchen with elegant cabinetry, stone benchtops, stainless steel European appliances and plenty of room for a family dining table
- Large living room with feature fireplace
- Renovated bathroom with floor-to-ceiling subway tiling and shower over bath
- Walk-in laundry
- Comfort assured by split-system heating and cooling
- Huge attic storage space
- Original wall paneling and floorboards lend heritage character to updated interiors
- Sliding doors open from the kitchen to a covered entertaining deck overlooking the spacious, fairy-lit backyard with manicured lawn, established garden beds and gated side laneway access
- Potential for off-street parking
Enviably located in a highly coveted pocket of Yarraville. Somerville Road’s cafes and eateries await just footsteps from your front door or walk to Yarraville Village in less than 15 minutes* to enjoy its fabulous selection of cafes and eateries, boutiques and gourmet grocers.
Catch a movie at the iconic Sun Theatre or plan a date night at one of the cosy village wine bars.
The short walk to Yarraville Square promises easy access to Coles while proximity to Seddon Village adds extra lifestyle appeal.
Walk to Cruickshank Park in just 9 minutes* for a scenic stroll along the Stony Creek Trail as it winds through stunning parkland dotted with playgrounds and outdoor fitness amenities.
Only 8.6km* from the CBD with easy road access or walk to Yarraville Station for regular city-bound trains.
Sought-after school zone – Yarraville West Primary School (9-minute* walk), Footscray High School’s Pilgrim campus (easy bus ride) and St. Augustine’s Primary School (12-minute* walk).
*Approximate