38 Benbow Street, Yarraville
House
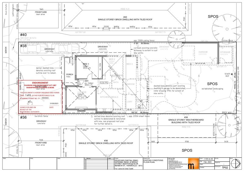
Easy Family Living With Exciting Approved Extension Plans!
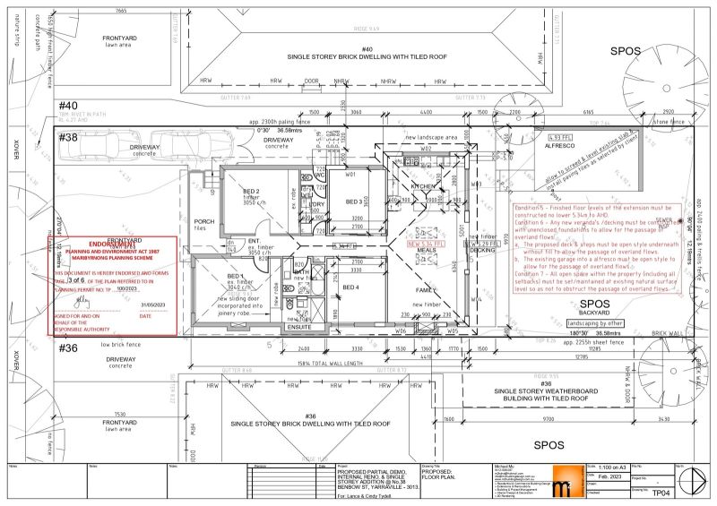
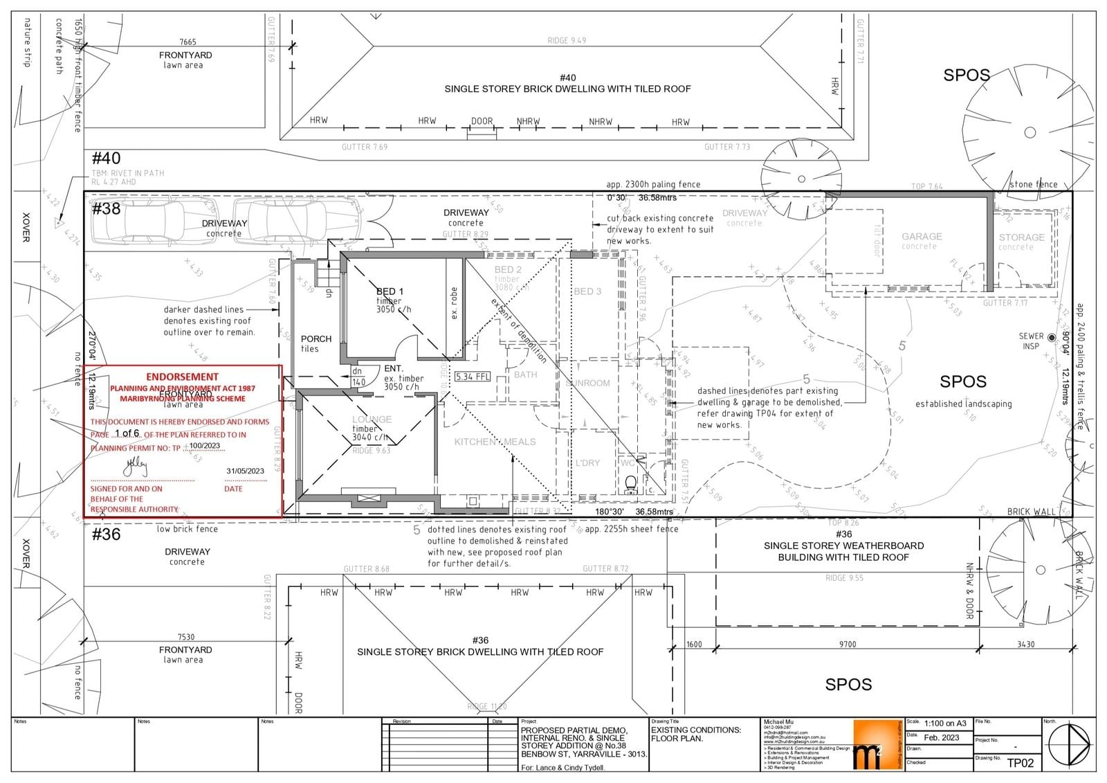
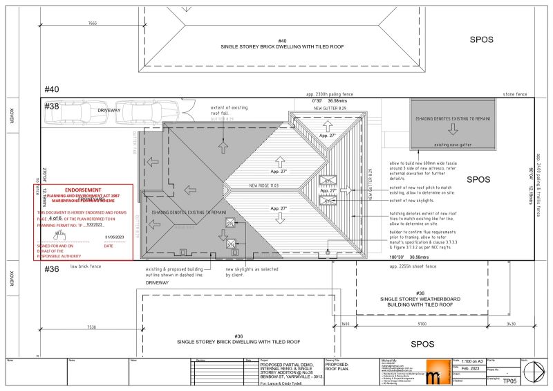
• Recently updated family home set on a 445 sqm* allotment in a prime lifestyle location
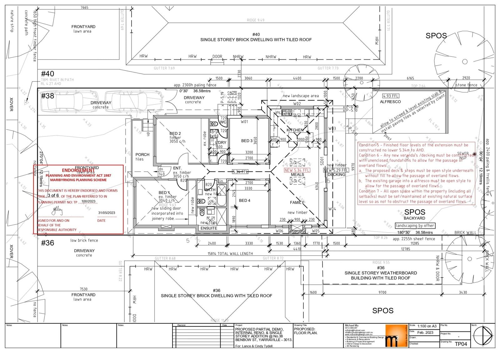
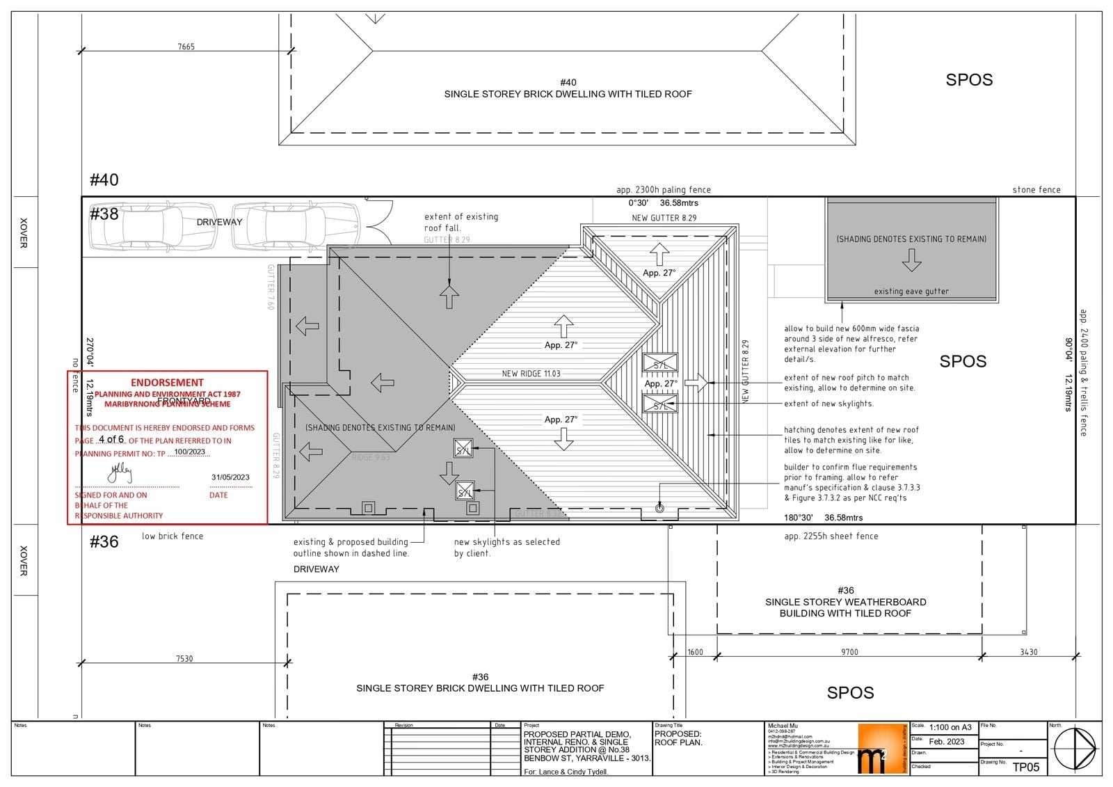
• Approved plans for extension + scope for further updates
• Two bedrooms, including an oversized master with a full-width built-in robe
• Generous, recently refreshed kitchen/dining
• Spacious living room with front garden views
• Updated bathroom with shower + second toilet + large walk-in laundry
• Large front garden + huge north-facing back garden
• Enviable off-street parking
• North facing Study / Bedroom 3 option
Offering spacious family living and approved plans for extension, this recently refreshed two-bedroom home will delight families seeking a home that’s ready to grow in a sought-after lifestyle location.
Heritage features have been lovingly preserved and complemented by chic plantation shutters, fresh paintwork and restored original floorboards. High ceilings add extra period appeal, while the spacious front and back gardens are sure to be a huge hit with kids, pets and green thumbs!
Two bedrooms include a large master, taking in stunning front garden views and offering the enviable storage of a full-width built-in robe. The north facing study provides a perfect place to work from home, together with the fast NBN Fibre to the Premises connection.
The centrally positioned bathroom is ideally complemented by a second toilet, while the generous walk-in laundry adds extra family convenience.
Enjoy quality time together in the spacious lounge, with a gas electric heater and a ceiling fan ensuring your comfort. The kitchen/dining space has been updated to offer a modern corner kitchen and split-system air-conditioning, while the adjoining sunroom presents the luxury of a second living space and offers access to the sprawling back garden. Abundant veggie patches, steppingstone trails and a lovingly created Japanese-inspired garden combine to create an enticing outdoor escape, with plenty of room to create a luxe alfresco entertaining space to complement the new extension.
This is an increasingly rare opportunity to purchase a move-in-ready home on a full-sized block in such a sought-after location, with all the prep work for a bright future already done!
Don’t miss your chance to come and see it for yourself.
Why you’ll love this location:
This highly sought-after location offers family-friendly living less than 10km* from the CBD and within easy walking distance of local conveniences.
Stroll to Somerville Road’s cafes and eateries and walk to Yarraville Village in less than 20 minutes to immerse yourself in its fabulous village atmosphere, with bustling cafes, fabulous restaurants and enticing shopping to enjoy.
The iconic Sun Theatre invites you for a movie, the village wine bars invite you for a night out with friends and Yarraville Station offers regular trains for an easy city commute.
Walk the kids to Wembley Primary School in six minutes* and grab a coffee from Coe and Coe for the stroll home. Join the Stony Creek Trail just metres from your front door and follow it to the heart of beautiful Cruickshank Park, where playgrounds, bike tracks and community gardens await amongst stunning natural surroundings.
Yarraville Square offers Coles and a variety of retailers a 12-minute* walk from home, while proximity to Altona Gate Shopping Centre, Highpoint and Central West Shopping Centre ensures access to vibrant big-name shopping and your choice of supermarkets.
*Approximate
• Approved plans for extension + scope for further updates
• Two bedrooms, including an oversized master with a full-width built-in robe
• Generous, recently refreshed kitchen/dining
• Spacious living room with front garden views
• Updated bathroom with shower + second toilet + large walk-in laundry
• Large front garden + huge north-facing back garden
• Enviable off-street parking
• North facing Study / Bedroom 3 option
Offering spacious family living and approved plans for extension, this recently refreshed two-bedroom home will delight families seeking a home that’s ready to grow in a sought-after lifestyle location.
Heritage features have been lovingly preserved and complemented by chic plantation shutters, fresh paintwork and restored original floorboards. High ceilings add extra period appeal, while the spacious front and back gardens are sure to be a huge hit with kids, pets and green thumbs!
Two bedrooms include a large master, taking in stunning front garden views and offering the enviable storage of a full-width built-in robe. The north facing study provides a perfect place to work from home, together with the fast NBN Fibre to the Premises connection.
The centrally positioned bathroom is ideally complemented by a second toilet, while the generous walk-in laundry adds extra family convenience.
Enjoy quality time together in the spacious lounge, with a gas electric heater and a ceiling fan ensuring your comfort. The kitchen/dining space has been updated to offer a modern corner kitchen and split-system air-conditioning, while the adjoining sunroom presents the luxury of a second living space and offers access to the sprawling back garden. Abundant veggie patches, steppingstone trails and a lovingly created Japanese-inspired garden combine to create an enticing outdoor escape, with plenty of room to create a luxe alfresco entertaining space to complement the new extension.
This is an increasingly rare opportunity to purchase a move-in-ready home on a full-sized block in such a sought-after location, with all the prep work for a bright future already done!
Don’t miss your chance to come and see it for yourself.
Why you’ll love this location:
This highly sought-after location offers family-friendly living less than 10km* from the CBD and within easy walking distance of local conveniences.
Stroll to Somerville Road’s cafes and eateries and walk to Yarraville Village in less than 20 minutes to immerse yourself in its fabulous village atmosphere, with bustling cafes, fabulous restaurants and enticing shopping to enjoy.
The iconic Sun Theatre invites you for a movie, the village wine bars invite you for a night out with friends and Yarraville Station offers regular trains for an easy city commute.
Walk the kids to Wembley Primary School in six minutes* and grab a coffee from Coe and Coe for the stroll home. Join the Stony Creek Trail just metres from your front door and follow it to the heart of beautiful Cruickshank Park, where playgrounds, bike tracks and community gardens await amongst stunning natural surroundings.
Yarraville Square offers Coles and a variety of retailers a 12-minute* walk from home, while proximity to Altona Gate Shopping Centre, Highpoint and Central West Shopping Centre ensures access to vibrant big-name shopping and your choice of supermarkets.
*Approximate