38A Mary Street, Spotswood
House
A Grand Family Home
Enjoying the peaceful tree lined streets of residential Spotswood this home of grand proportions is impressive from its facade right through.
Conveniently located within easy striking distance to Westgate freeway access, Yarraville Village and Newport Junction you are surrounded by great local schools and green spaces and handy groceries and McLister St Shops.
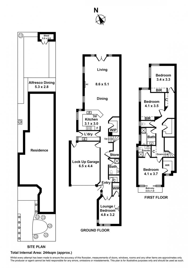
Presented in immaculate condition the house features;
- 6.6KW battery solar panel array
- Expansive sunbathed open living, kitchen and entertaining area
- Living and entertaining are linked by French doors to a roofed alfresco dining domain
- Superb kitchen fitted with stone benchtops, classy cabinetry, quality appliances and a large walk-in pantry
- Three sizable upstairs bedrooms comprising built-in robes and plush carpets
- A sensational master with its own balcony, walk-in robe and beautiful ensuite
- A downstairs 4th bedroom with walk-in-robe as optional office or additional lounge
a shared family bathroom with a separate toilet
An inviting residence of refined living is complete with elegant décor, two family bathrooms, exceptional storage spaces including a walk-in storage room, linen closest and under stair storage, spacious laundry, ducted heating, split system heating and cooling, double remote garage with internal and rear access, off-street parking, garden shed and a generous secure backyard.
Walk to the train for a 25 min CBD commute from a refined residence with every comfort expectation. More conveniences with nearby schools, child care, Spotswood train station, bay trails, Yarraville’s Sun Theatre, Williamstown beach as well as many coveted educational and entertaining treasures.
WE KINDLY RECOMMEND REGISTERING FOR INSPECTIONS AND/OR CHECKING TIMES ON THE INTERNET 24 HOURS PRIOR TO BE KEPT UPDATED OF CANCELLATIONS.
PLEASE NOTE: PROPERTY MUST BE VIEWED PRIOR TO SUBMITTING AN APPLICATION
Conveniently located within easy striking distance to Westgate freeway access, Yarraville Village and Newport Junction you are surrounded by great local schools and green spaces and handy groceries and McLister St Shops.
Presented in immaculate condition the house features;
- 6.6KW battery solar panel array
- Expansive sunbathed open living, kitchen and entertaining area
- Living and entertaining are linked by French doors to a roofed alfresco dining domain
- Superb kitchen fitted with stone benchtops, classy cabinetry, quality appliances and a large walk-in pantry
- Three sizable upstairs bedrooms comprising built-in robes and plush carpets
- A sensational master with its own balcony, walk-in robe and beautiful ensuite
- A downstairs 4th bedroom with walk-in-robe as optional office or additional lounge
a shared family bathroom with a separate toilet
An inviting residence of refined living is complete with elegant décor, two family bathrooms, exceptional storage spaces including a walk-in storage room, linen closest and under stair storage, spacious laundry, ducted heating, split system heating and cooling, double remote garage with internal and rear access, off-street parking, garden shed and a generous secure backyard.
Walk to the train for a 25 min CBD commute from a refined residence with every comfort expectation. More conveniences with nearby schools, child care, Spotswood train station, bay trails, Yarraville’s Sun Theatre, Williamstown beach as well as many coveted educational and entertaining treasures.
WE KINDLY RECOMMEND REGISTERING FOR INSPECTIONS AND/OR CHECKING TIMES ON THE INTERNET 24 HOURS PRIOR TO BE KEPT UPDATED OF CANCELLATIONS.
PLEASE NOTE: PROPERTY MUST BE VIEWED PRIOR TO SUBMITTING AN APPLICATION