Office 4 @ 37/91 Moreland Street, Footscray
Offices
Creative Suite/Office 4 @ 37 Moreland Street, Creative Studio at Cotton Mills Estate
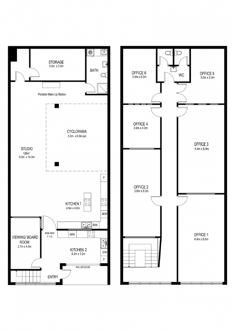
Bang for buck office has come up for rent within our creative co-working hub. (See office 4 on floor plan attached)
Located on the Maribyrnong river, Footscray's iconic creative hub, The Docklands Cotton Mills, your neighbor's include design agencies, photographers, web designers, production companies, artists and a great range of small to medium corporates.
This beautiful and unique red brick light filled 4m x 4m office would suit from one to four people. Private facilities include your own heating, cooling, ether ports (FTTB), WiFi and video intercom to the front door. You also have access to kitchen and boardroom with wireless presentation screen and whiteboard. Rent includes all outgoings including internet. There are also FTTB ports available should your business require its own private secure internet connection.
Also onsite are two amazing state-of-the-art photography studios with AV facilities for larger presentations, business events or photo/ video shoots. They are available for hire at a discounted in-house rate!
Do come and take a look, we've already made you a coffee.
Located on the Maribyrnong river, Footscray's iconic creative hub, The Docklands Cotton Mills, your neighbor's include design agencies, photographers, web designers, production companies, artists and a great range of small to medium corporates.
This beautiful and unique red brick light filled 4m x 4m office would suit from one to four people. Private facilities include your own heating, cooling, ether ports (FTTB), WiFi and video intercom to the front door. You also have access to kitchen and boardroom with wireless presentation screen and whiteboard. Rent includes all outgoings including internet. There are also FTTB ports available should your business require its own private secure internet connection.
Also onsite are two amazing state-of-the-art photography studios with AV facilities for larger presentations, business events or photo/ video shoots. They are available for hire at a discounted in-house rate!
Do come and take a look, we've already made you a coffee.